ARCHITECTURAL FABRICATION AUTOMATION
Automating Grasshopper workflows to eliminate manual drafting and site errors for the AEC industry.

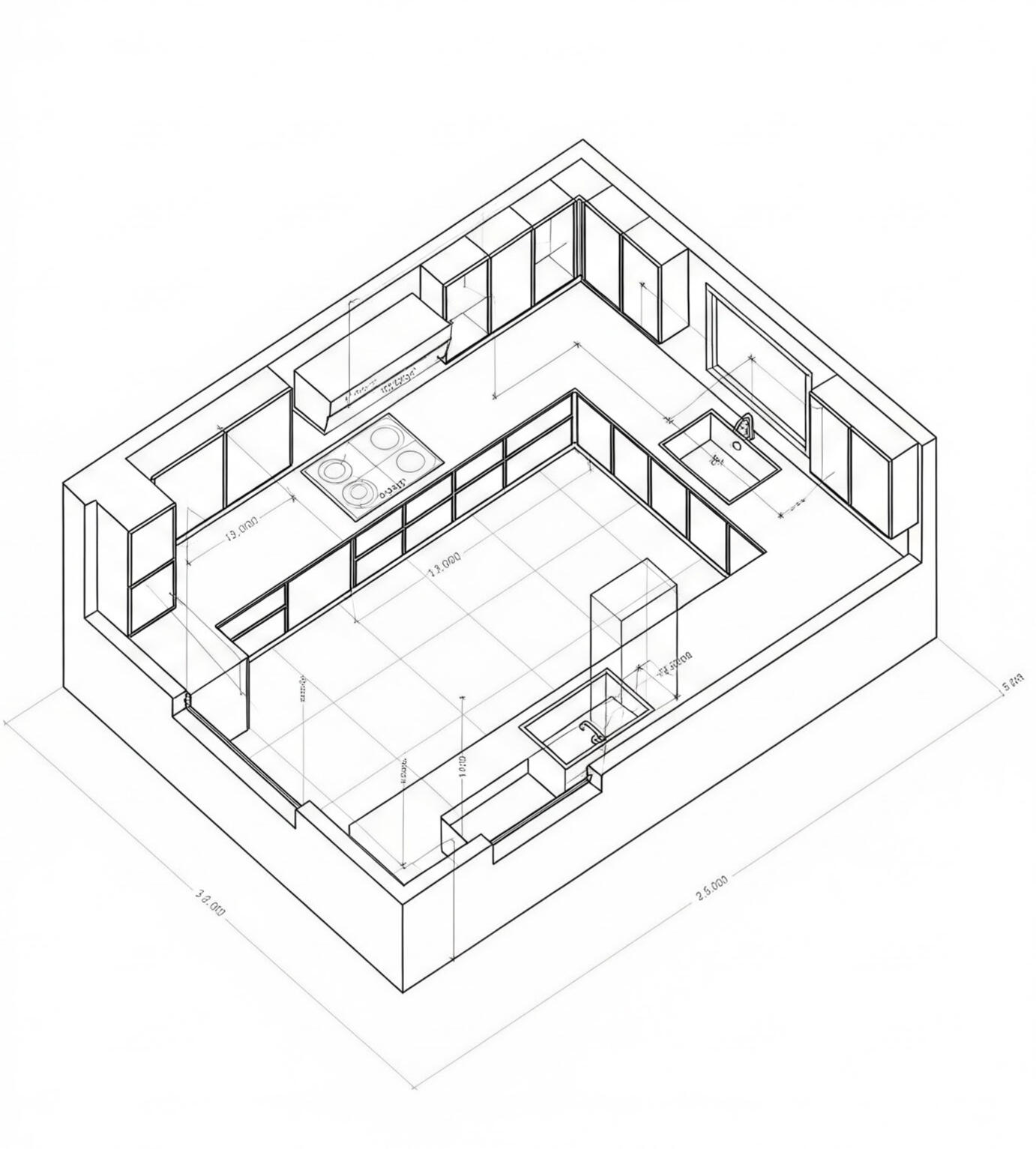
Parametric Millwork
Bypassing the manual drafting bottleneck with automated, CNC-ready cut lists and zero-error tolerances.
Spatial Fabrication
Translating complex acoustic performance data into physical, localized CNC fabrication files.


Grasshopper Tool
Automating Grasshopper canvas workflows to rapidly accelerate the development of our fabrication tools.
THE MISSION
Code has no value until it cuts material. We build the deterministic Grasshopper tools that eliminate the "1mm error" and automate physical fabrication
THE NETWORK
Enter your email to secure early alpha access to our fabrication tools and instantly receive our "THE ALGORITHMIC BUILDER’S BLUEPRINT" PDF
© 2026 AlignSpace. All rights reserved. Building deterministic tools for the AEC industry.
© Untitled. All rights reserved.